关于我们
董事长致辞
组织架构
公司简介
党建工作
学习专栏
活动动态
动态聚焦
动态聚焦
公示公告
重点项目
重点项目
六大会战
分子公司
分子公司
金申租售
金申租售
联系我们
联系我们
在线留言
Dynamic focus
动态聚焦
0838-6220566
动态聚焦
公示公告
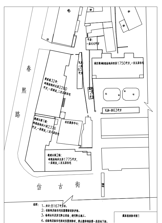
绵竹棚户区改造项目代家巷片区一期拆除工程施工比选公告
点击量:436
第一章 比选公告
绵竹市危旧房棚户区改造项目—代家巷片区一期拆除工程
施工比选公告
1.
比选条件
本比选项目绵竹市危旧房棚户区改造项目—代家巷片区一期拆除工程,已由竹发改审(2016)85号批准建设,项目业主为
绵竹市金申投资集团有限公司
,建设资金来自
企业自筹及国开行贷款资金
(资金来源),项目出资比例为
100%
,比选人为
绵竹市金申投资集团有限公司
。项目已具备比选条件,现对该项目的拆除施工进行公开比选。
2. 项目概况与比选范围
2.1 标段划分:
施工一个标段。
2.2 拆除地点:
绵竹市代家巷片区。
2.3 拆除内容及规模:施工范围:见拆除附图。
注:
所有地面建筑物及附属设施均拆除到室外正负零,在报价中需考虑税收、安全文明施工费、垃圾清运、场平、四面打围、扬尘洒水等。中标后需完成项目的所有工程量,不能中途退场。
2.4 拆除限价:18万元。
2.4 计划工期:
60日历天。
2.5 比选范围:
项目清单包含的所有内容。
3. 投标人资格要求
3.1本次比选要求投标人须
注册地在德阳市行政区域范围内
,具备
独立企业法人资格,同时具备国家建设行政主管部门颁发的建筑工程施工总承包叁级及以上
资质。
3.2本次比选
不接受
联合体投标。
3.3该项目前期勘察、设计单位及其任何附属机构(单位)不得参加本项目比选。
4. 比选文件的获取
4.1 投标报名。凡有意参加投标者,请于2017年12月1日12时00分之前,携带企业营业执照(原件)和介绍信到绵竹市月波街178号绵竹市金申投资集团有限公司二楼项目开发部报名,报名费200.00元,逾期未报名的投标企业将不能报名及获取比选文件。
4.2 比选单位在报名后,留存营业执照复印件、资质证书复印件、安全生产许可证复印件(复印件需加盖企业鲜章)和介绍信可现场领取(拷贝)比选文件。
4.3 比选人不提供邮购比选文件服务。
5. 投标文件的编制和递交
5.1 投标人根据比选文件要求编制投标文件。
5.2 投标人应于投标截止时间2017年12月1日15时00分前将投标文件提交至绵竹市月波街178号绵竹市金申投资集团有限公司三楼会议室开标现场。
5.3 逾期提交至开标现场的投标文件,比选人不予受理。
6. 开标地点
投标人应于投标截止时间前到达
绵竹市金申投资集团有限公司
开标。
7. 发布公告的媒介
本次比选公告在
绵竹市金申投资集团有限公司官方网站
(发布公告的所有媒介名称)上发布。
8. 联系方式
比选人:
绵竹市金申投资集团有限公司
地址:
绵竹市月波路178号
邮编:
618200
联系人:
李先生
电话:
0838-6910232
传真:
0838-6220566
代家巷红线图
版权所有:金申投资集团有限公司 工信部:
蜀ICP备2020026807号-1
公安部:川公网安备:51068302000161号
违法和不良信息举报中心
四川省互联网举报中心